【摘要】建设项目5年,使用项目50年,如果建筑规划仅仅只考虑得房率的纸面数据,而忽视了“房子是给人用的”这样的一个核心,离开了对于用户的关心,数据再好的产品最终也会失去用户的信任。机电顾问从机电检修维护角度,以产品为核心,从终端客户的需求出发,提出了针对典型办公建筑核心筒布局的建议。
笔者从事机电顾问行业已经有一些时间了,从最初如何按时按质配合建筑师完成机电的配合提资,到近些年渐渐开始思考如何从纯粹的设计配合工作升华到站在用户的角度,从产品的立场来考虑如何进行设计配合工作。有了这样的思维转变之后,发现顾问的设计工作其实也可以从被动变为主动、从完成任务到期待结果的转变、从枯燥的机械动作到充满生命活力的设计构想实现的转变!这是一种令人愉悦的状态!
既往我们在办公标准层的处理中仅就机房大小、管井大小提资建筑,能满足机电使用、维修的基本要求即可,并没有考虑项目建成之后销售出租的需求、物业的需求、用户使用的便利。基于这些,我们逐渐对于典型“回”字形办公项目从物管的角度、用户的角度总结了这样一些体会(办公建筑的核心筒布局有很多种,这里我们仅就最为典型的方式进行探讨),从中发现一些有价值的东西。
1、尽量实现核心筒向办公区的交通动线通透、直接、高效——这个本来是建筑设计规划的考量,不揣冒昧在这里提出,是因为核心筒空间非常紧凑,除了要考虑三个基本功能(建筑竖向及水平疏散、结构支撑、机电收纳)之外,还需要考虑项目建成后用户如何使用,建设项目5年,使用项目50年,如果建筑规划仅仅只考虑得房率的纸面数据,而忽视了“房子是给人用的”这样的一个核心,离开了对于用户的关心,数据再好的产品最终也会失去用户的信任。因为核心筒极为紧凑,核心筒的交通规划直接影响机电用房的布局,因此在这里首先提出这个概念。落地的结果就是从电梯厅向办公区的通道最好就是贯通型的!如下图(概念示意图一,根据实际项目略作修改)。
2、在执行了第一条的情况下,典型核心筒会呈现“日”字形的典型主通道——中间一横是电梯厅,周边是环绕核心筒的环通通道,但凡业内人士没有不熟悉的。我们的第二条就从现在开始:尽量使平行于电梯厅的两条通道上没有机电用房的开口。过往我们并没有认真考虑这个问题,是在项目考察过程中和物业单位的接触中体会到了物业的痛点:- 物业招租或者出售中经常碰到整层出租、半层出租或者购买的情况,如果碰到这种情况,租户或者买家的直接动作就是把除了必须的消防通道让出之外,会把其余的主通道全部并入办公区,这是用户利益最大化的结果,无可厚非,上海很多项目也是这样做得(不信就看看你自己所在的办公楼是怎样的)。在这样的情况下,物业如果要检修空调机房、水表间、电气机房等机电用房的时候需要提前和租户进行电话预约(有些用户对于办公的内部管理是很严格的),很不方便;
- 用户也不方便,需要忍受工作时间物业人员带着工具进入机电用房检修的不便利,虽然这在实质上没有什么,但是某种程度上拉低了整体建筑的品质和客户的体验,也制造了管理上的不便利;
基于以上,我们建议在机电用房及管井的开门规划上,机电专业和建筑专业需要共同努力,尽力避免在平行于电梯厅通道的两条主通道上开设机电用房的开门设置,如右图阴影区域(概念示意图二,根据实际项目略作修改)。 3、遵循第2条之后带来一个问题,机电用房和管井的开门位置到底要开在哪里?——开在核心筒内部(如不能完全实现,尽量开在垂直于电梯厅通道的主通道上,如下图云线所示(概念示意图三,根据实际项目略作修改),这个需要核心筒交通规划来实现:
物业维护动线尽量和用户动线分开,这是两条基本不相干但是有关联的动线——用户动线是从电梯厅能高效直达办公区,物业动线是从货梯到达机房、管井进行运维,在此过程应力求不对用户造成干扰。
但是两条动线又有联系的地方——卫生间保洁和电梯厅保洁。电梯厅和卫生间是用户最常使用到的空间,但是通常维保的工作都是在物业方面,因此也希望维保人员在不干扰客户的情况下能通过货梯直接到达楼层卫生间和电梯厅;
- 解决的办法是——借用消防疏散通道将物业动线有效贯通、借用核心筒空间联结物业动线和电梯厅用户动线,最终实现办公建筑用户和物业之间互不干扰、有效服务的理想效果。
好了,最枯燥乏味的地方总算过去了,可能部分读者已经表示了厌烦,下面我们就以实际的项目案例来说明我们依据这样的思维在具体的设计配合中的故事。故事一:上海某大型综合发展项目,其中四栋两类塔楼,分别由两家建筑师进行设计,就称为建筑师A和建筑师B吧。我们的服务从建筑完成概念方案之后开始,从那时候(2015)我们已经逐步完成了之前所述的思维转变,因此看到两个概念方案之后,我们提出了上述的布局概念,对了先看看概念布局吧首先来看T1\T2,基本上按照得房率最大化考虑的核心筒布局(T1\T2为高、中、低三区,为了强化主题,我们在这里只讨论低区和中区)。
T1\T2原方案低区

T1\T2原方案中区
再来看T3\T4,除了建筑布局和体量小于T1\T2之外,仍然是首先考虑得房率。

T3\T4原方案低区

T3\T4原方案中区
针对上述概念方案,我司提出了针对产品角度的核心筒布局思路,希望能和建筑师一起对于项目标准层平面布局进行充分探讨,我们的思路建议得到了业主方的认可;
此后,我司针对T1\T2布局提出了优化布局建议,按照之前的布局思路,如下图(我们曾经希望AC机房和消防疏散对角布置,但是由于建筑希望在高区实现退界,此想法未能实现):
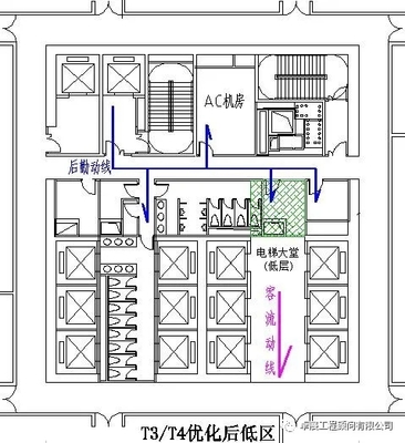
对于T3\T4,建筑师B积极与我司沟通,优化出如下布局:
对于T3\T4,我们曾经建议打通电梯厅与后勤消防通道的联结(如图中阴影部分),建筑师则考虑对于建筑档次影响,这里应该是一个平衡的考量!上述过程经历很长时间的反复,在尚未确定最终方案的时候,项目暂停,业主方对于项目的思路发生了非常大的调整,整个项目规划方案也完全重新调整,原来4栋2类办公调整为7栋办公,另外,业主方与建筑师A、建筑师B均解除了合约。经过约一年的暂停阶段之后,整个项目重新来过。这样我们迎来了建筑师C。建筑师C 主动提出了将客户动线和物业及疏散动线进行分离的概念,这与我们一贯建议的思维基本一致,典型方案布局如右图。

目前该项目方案已经基本确定,建筑师、业主方以及我们都对布局的思路和方向没有异议,虽然项目还没有建成,但是眼看着项目推进是沿着自己有逻辑的深入思考的方式在推进,这种感觉是比纯粹按部就班完成规定动作的设计要好的多,虽然中间过程有很多反复的推演和尝试!
故事二:上海浦东陆家嘴金融圈某高档金融商务区,已经建成投入运营两年,我们进入项目配合是2010年,其时已经完成施工图设计,作为机电顾问的服务工作,当时我们的关注点主要还是设备、电气、电梯、弱电、空调、消防等纯粹机电相关部分工作,一直到项目建成结束我们也没有认真考虑过它的核心筒布局有什么逻辑,直到近几年我们经过思考缕清了办公建筑核心筒布局逻辑的时候才发现,这是一个完完全全遵循前述我们讨论的自以为是新发现的整套逻辑的项目,此项目是09年完成全部设计的,方案设计由日方完成,也就是说日本的建筑师在几年前已经对这些布局形成了非常清晰的逻辑!好了,废话不多说,我们来体会一下该项目的1#楼的核心筒布局:


该项目1#楼高190米,分高、中、低三个区,典型回字形布局,金融办公性质,完全符合前述的逻辑:租户通过电梯厅直接进入办公区,电梯厅非常通透;
核心筒办公区墙面非常简洁干净,所有机电的开门(机电设备房、机电管井)全部收进核心筒立面,杜绝了物业检修需要和租户预约的麻烦;
- 物业动线和用户动线清晰明了,互不干扰的情况下又有机联结——物业人员通过货梯到达所有机电运维区域,也能对卫生间和电梯厅进行维保,并且不干扰租户和用户。
该项目为了保证上述逻辑的实现,甚至在核心筒电梯厅通道的两端外挂了高区和低区的客梯,在直观上似乎不是一个很好的布置,但是也很好的保全了前述的布局原则,这里也许是一个妥协和平衡吧!
在讨论了布局之后,我们还可以进一步讨论这样的布局对于租户或者买家来说有什么样潜在的优势,笔者认为如果不能在开发者这里得到支持,前面的逻辑虽然有道理,但是好像也仅仅便宜了物业、方便了客户,对于开发者没有太大的好处,那么我们就顺着这个疑问,以故事二的高区为例推敲下可能面对客户的几种情况:- 市场情况一般,只有小租户愿意承租(100~300平米),那么没有什么好说的,环形通道围绕核心筒一圈,把所有小租户的开门全部连接,这是最不好的情况,但也是很常见的情况;

- 市场情况比较好,有较大面积承租(400~800平米),这种情况下通常会碰到两租户、三租户的情况,这时候建筑布局对于租户的优势就发挥出来了,尤其面积大的时候,此时租户就可以把该区域的走道空间也划归实际办公空间了,如图阴影区所示(这是租客的天然冲动,一样已经把该区域的租金交付了,当然希望能被自己使用)。我们自己的办公区域也是和另外一家公司分享的两租户布局,大家不约而同的把走道利用为办公区域了,看看你们自己的公司是不是也是这样干的?不过由于笔者自己的办公区域有机电设备房和管井的开门,物业会时常进入办公区进行维保,加上办公楼比较老,那也是没有办法的!


- 如果遇到整层或者多层被出租或者出售的,那就是大客户了,这时候让大客户高兴比什么都重要,现在我们再来看——走道全都给了大客户、电梯厅通畅、物业与客户之间没有流线冲突,大客户所有的高大上的需求在平面布局的硬件层面全都能满足,你还怕这样的布局大客户不喜欢吗?

看到这里,其实很清楚了,如果你是开发者的营销人员,上面这些就是你的卖点啊!市场好的时候也许没什么了不起,但是当市场充分竞争的时候,任何一个对于客户有利的点就会成为击败你的竞争对手的那最后一击,况且这里不止一击哦!好了,把这些牛吹完之后其实大家也都会认识到,这样的布局对于开发商进行产品推广、对于将来的物业维保、对于未来用户的利益诉求都给予了充分的考量和关怀!这是通过对于终端市场用户的实际需求(用户包括租户、买家和物业)的满足来倒逼前端设计的一种产品开发逻辑!它不是简简单单满足规范要求、满足开发商数据指标控制要求的设计结果,它是一种产品化思维指导之下的、通过用户需求梳理、进行前端整合的标准产品开发流程的结果!——像不像现在最流行的做手机的思维?是的,就是做手机的思维,只不过产品之间差异性之大通常都会蒙蔽我们的双眼,让我们以为这是两种不同的东西,从某种程度上说,他们没有区别!补充一下,故事二的项目是日方建筑师完成的设计,是全日本2016年十大优秀设计作品的两件海外作品之一(从399件作品中评选,另外一件是新加坡的),作为获选优秀项目仅仅从办公标准层布局一个点上就能体现出其十足的功力!前面我们一直在用一种略带轻松的语气在讲述,下面我们做一点认真的总结!
以前没有做过认真考虑的时候,总是基于设计规范的要求提出办公建筑机电空间需求,考虑VAV还是FCU系统的时候会有和建筑师及业主方之间的讨论,一般不会考虑物业如何运维、如何管理,也很少考虑租户和买家的需求如何实现。最近几年在项目实际操作中随着与业主方、物业顾问、物业单位的接触不断深入,了解项目开发前期如何定位、定位客户的实际需求、物业顾问的经验学习、物业单位在实际运维中的痛点体会,逐渐体会到过往那种按部就班、满足规范要求的设计配合思维是很难持续下去的,应该以产品为核心思考、站在用户和开发者的角度考虑设计方向如何规划。随着目前行业的市场化进程不断加快,我们体会到开发商销售终端面对客户需求的压力不断向设计前端传导,迫使设计研发团队需要对于空间利用、动线布局、机电配置、物管需求、客户心理、销售灵活等诸多元素全方位予以考虑,现阶段高品质的楼盘设计已经不再是各设计部门各司其职就能做好的,需要各方充分沟通、全方位考虑、交叉配合才能做好前置性的产品规划。综上,对于办公产品的探讨,已经不局限在专业团队之间的分析,需要市场、物管、销售、工程等多方面的信息整合之后才能推敲出适合的产品功能规划,并且需要在过程中随时根据外部条件的变化而调整。我们作为机电顾问已经意识到,为了做好项目需要从介入项目起始就应该从“产品”规划入手,尽力把自身项目经验及观点总结并及时提供建筑师、业主方和各合作方,希望通过各协作方的通力配合、积极沟通,能为项目提供一些帮助。由于我们不是建筑专业,对于建筑设计本身不具有专业性的理解,仅仅通过客户切身体验、机电检修维护、物业管理反馈和市场可能性出发给出相关建议,供各方参考,希望能抛砖引玉,为办公类产品开发提供新观点,为地产行业的整体进步提供点滴的助力!
这些文字只是自己在实际工作中的一些浅显的总结和体会,本来以为是发现了新大陆——确实是自己在工作过程中整理出来的思路和逻辑!哪里知道日方设计同行在几年前就已经落在纸上并且付诸实践了,有一种小小的失落,不过也没关系,我们总是在追赶中超越自己,想通了这个也就释然了!能让有价值的东西传播的更广一些本身也是一件好事情。我们这一代地产从业人非常幸运,赶上了这个国家最好的建设时代,产品演化非常之快,有幸能参与其中,在反复修改的困扰和不断加班的疲倦之余,想到这些,还是值得高兴地!完成这些文字不是一个人的事情,感谢很多同事在其中的参与协作(王工(琳)在思路构建和本文图面处理上提供了支持;蔡工(johnnie)在思路构建过程中进行了建筑布局的调整验证;林工(剑锋)在故事一中做了核心筒布局的尝试;李工(木子李)在本文写作上给予了鼓动和支持);感谢卓展公司提供的这样一个自由而开放的平台!感谢我们所处的这样一个给了所有业内人士机遇的大时代!陈谭
卓展工程顾问(北京)有限公司上海分公司